Tornio CNC verticale rovesciato motorizzato KIA SKT21 VM con caricatore

Non disponibile
Tornio CNC verticale rovesciato motorizzato KIA SKT21 VM con caricatore
Descrizione
Tornio CNC verticale rovesciato usato
con utensili motorizzati
dotato di controllo numerico Fanuc 0i-TA
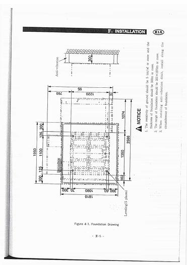
INSTALLAZIONE MACCHINA: anno 2005
ACCESSORI MACCHINA:
- Evacuatore trucioli
- Magazzino pezzi laterale + caricatore gantry
- Mandrino autocentrante d.250 mm
- Torretta motorizzata 12 posiz. VDI40
- Vari utensili motorizzati a corredo
Specifiche
| Produttore | KIA |
| Modello | SKT21 VM |
| Anno | 2005 |
| Condizione | Usato |
| Numero di serie | Rif. etichetta macchina |
| Numero di magazzino | T64190923 |
| Ø max tornibile | 350 mm |
| Volteggio max | 680 mm |
| Corsa asse X | 1255 mm |
| Corsa asse Z | 320 mm |
| Velocità rotazione mandrino | 5000 min-1 |
| Attacco mandrino | ASA 6 |
| Potenza mandrino | 11 kW |






















